心醉美式风,扯不断的庄园情结——紫苹果别墅装修设计欣赏
追求本色,热爱自由是每个美国人骨子里的性格,他们也将沉淀到平日的生活中去,延续到家庭氛围的每个角落,他们无形中把这种“庄园情结”影响而传染给了全世界的人们。庄园既是一种社会地位与身份的象征,更是一种与众不同的生活方式,一种尊贵和优雅。
项目信息
项目地址:海韵枫丹 项目面积:700平
业主诉求:在空间格局上,因房子住的人不多,所以业主希望公共活动区域尽量宽敞大气,除了保证主人的生活空间以外,需要尽量多的衣帽间和储物空间;其次负一楼层高较高,需要在考虑到大空间的同时要充分利用挑高的空间。整体风格表现厚重沉稳内敛,又可表现业主追求自由、惬意、自然、休闲的生活状态 。
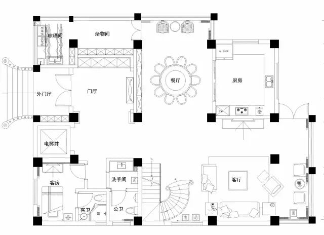
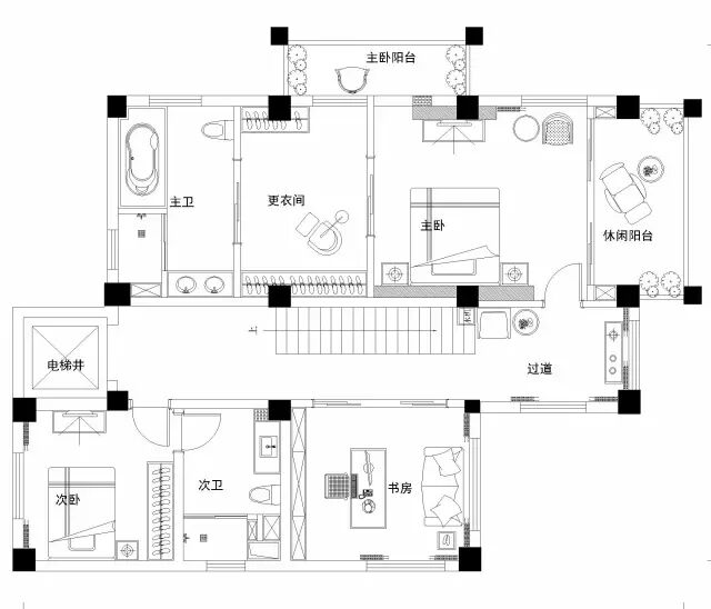
『平面布局方案』
设计亮点:设计师以传统庄重典雅作为整体设计思路。强调古典之美和自然之美。通过大量石材及墙纸,木质来展开整个设计的同时。空间框架继承了实木材料的古典美,玻璃、石材等大面积的运用,塑造了经典西式设计。空间整体以暖色调为主,搭配冷色的沙发抱枕,布艺装饰,更添几分沉静,在材质的混搭和丰富的层次中彰显大家风范。
『案例效果图』
负一层空间
门厅空间
餐厅空间
厨房空间
二层主卧
二层侧卧
三层主卧
书房空间
阁楼空间
『主材设计预案』
瓷砖部分配置
预约装修
紫苹果声明:
Copyright © 2017 zpg.com.cn All Rights Reserved. 沪ICP备12026319号-7 上海紫苹果装饰工程有限公司版权所有
上海紫苹果国际设计-品质赢得口碑
沪公网安备 31011502003160号




免费电话报价400-8255-919